Single-Family As-Builts

  • Single-Family As-Built, Menlo Park, Photo 1
  • Single-Family As-Built, Menlo Park, Photo 2
  • Single-Family As-Built, Menlo Park, Photo 3
  • Single-Family As-Built, Menlo Park, Photo 4
  • Single-Family As-Built, Menlo Park, Photo 5
  • Single-Family As-Built, Menlo Park, Photo 6
  • Single-Family As-Built, Menlo Park, Photo 7
  • Single-Family As-Built, Menlo Park, Photo 8
  • Single-Family As-Built, Menlo Park, Photo 9
  • Single-Family As-Built, Menlo Park, Photo 10

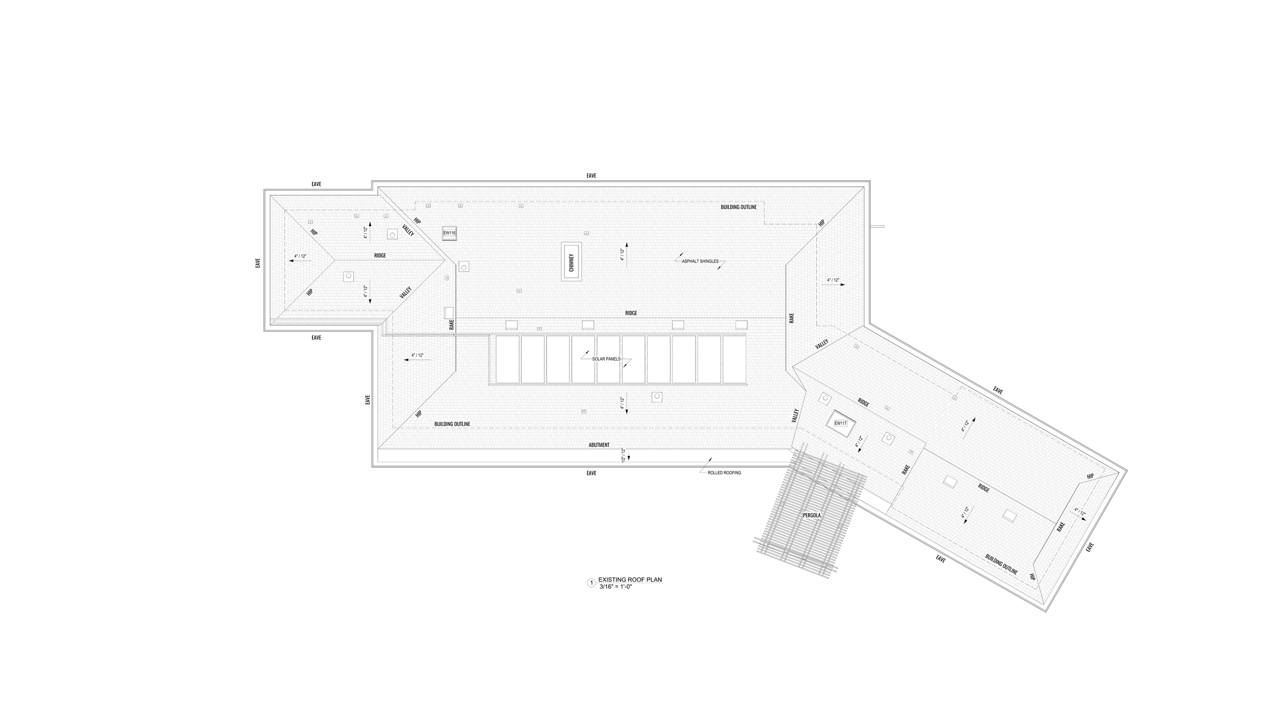
Single-Family As-Built, Menlo Park

Project Details

Alterpex was responsible for scanning and collecting data of existing conditions for a single-family house, creating a virtual 360 walkthrough tour (digital twin), and creating a 3D Revit model with a complete as-built set of plans for future renovation.

  • Building Area 2,088 sf

  • 3 Beds, 3 Baths

  • Complete As-Built Set of Plans

  • Full Interior & Exterior Point Cloud

  • 360 Virtual Tour

  • 3D Revit Model & CAD drawings

  • Single-Family As-Built, Menlo Park, Photo 1
  • Single-Family As-Built, Menlo Park, Photo 2
  • Single-Family As-Built, Menlo Park, Photo 3
  • Single-Family As-Built, Menlo Park, Photo 4
  • Single-Family As-Built, Menlo Park, Photo 5
  • Single-Family As-Built, Menlo Park, Photo 6
  • Single-Family As-Built, Menlo Park, Photo 7
  • Single-Family As-Built, Menlo Park, Photo 8
  • Single-Family As-Built, Menlo Park, Photo 9
  • Single-Family As-Built, Menlo Park, Photo 10
  • Single-Family As-Built, Menlo Park, Photo 11

Single-Family As-Built, Palo Alto

Project Details

Alterpex was responsible for scanning and collecting data of existing conditions for a single-family house, creating a virtual 360 walkthrough tour (digital twin), and creating a 3D Revit model with a complete as-built set of plans for future renovation.

  • Building Area 3,892 sf

  • 4 Beds, 4.5 Baths

  • Complete As-Built Set of Plans

  • Full Interior & Exterior Point Cloud

  • 360 Virtual Tour

  • 3D Revit Model & CAD drawings

  • Single-Family As-Built, Palo Alto, Photo 1
  • Single-Family As-Built, Palo Alto, Photo 2
  • Single-Family As-Built, Palo Alto, Photo 3
  • Single-Family As-Built, Palo Alto, Photo 4
  • Single-Family As-Built, Palo Alto, Photo 5
  • Single-Family As-Built, Palo Alto, Photo 6
  • Single-Family As-Built, Palo Alto, Photo 7
  • Single-Family As-Built, Palo Alto, Photo 8
  • Single-Family As-Built, Palo Alto, Photo 9
  • Single-Family As-Built, Palo Alto, Photo 10
  • Single-Family As-Built, Palo Alto, Photo 11
  • Single-Family As-Built, Palo Alto, Photo 12
  • Single-Family As-Built, Palo Alto, Photo 13
  • Single-Family As-Built, Palo Alto, Photo 14
  • Single-Family As-Built, Palo Alto, Photo 15
  • Single-Family As-Built, Palo Alto, Photo 16

Single-Family As-Built, Orinda

Project Details

Alterpex was responsible for scanning and collecting data of existing conditions for a single-family house, creating a virtual 360 walkthrough tour (digital twin), and creating a 3D Revit model with a complete as-built set of plans for future renovation.

  • Building Area 1,780 sf

  • 2 Beds, 2 Baths

  • Complete As-Built Set of Plans

  • Full Interior & Exterior Point Cloud

  • 360 Virtual Tour

  • 3D Revit Model & CAD drawings

  • Single-Family As-Built, Orinda, Photo 1
  • Single-Family As-Built, Orinda, Photo 2
  • Single-Family As-Built, Orinda, Photo 3
  • Single-Family As-Built, Orinda, Photo 4
  • Single-Family As-Built, Orinda, Photo 5
  • Single-Family As-Built, Orinda, Photo 6
  • Single-Family As-Built, Orinda, Photo 7
  • Single-Family As-Built, Orinda, Photo 9
  • Single-Family As-Built, Orinda, Photo 10
  • Single-Family As-Built, Orinda, Photo 11

Single-Family As-Built, Berkeley

Project Details

Alterpex was responsible for scanning and collecting data of existing conditions for a single-family house, creating a virtual 360 walkthrough tour (digital twin), and creating a 3D Revit model with a complete as-built set of plans for future renovation.

  • Building Area 2,996 sf

  • 3 Beds, 2 Baths

  • Complete As-Built Set of Plans

  • Full Interior & Exterior Point Cloud

  • 360 Virtual Tour

  • 3D Revit Model & CAD drawings

  • Single-Family As-Built, Berkeley, Photo 1
  • Single-Family As-Built, Berkeley, Photo 2
  • Single-Family As-Built, Berkeley, Photo 3
  • Single-Family As-Built, Berkeley, Photo 4
  • Single-Family As-Built, Berkeley, Photo 5
  • Single-Family As-Built, Berkeley, Photo 6
  • Single-Family As-Built, Berkeley, Photo 7
  • Single-Family As-Built, Berkeley, Photo 8
  • Single-Family As-Built, Berkeley, Photo 9
  • Single-Family As-Built, Berkeley, Photo 10

Single-Family As-Built, Santa Cruz

Project Details

Alterpex was responsible for scanning and collecting data of existing conditions for a single-family house, creating a virtual 360 walkthrough tour (digital twin), and creating a 3D Revit model with a complete as-built set of plans for future renovation.

  • Two Buildings Area 3,124 sf

    3 Beds, 3 Baths

  • Complete As-Built Set of Plans

  • Full Interior & Exterior Point Cloud

  • 360 Virtual Tour

  • 3D Revit Model & CAD drawings

  • Single-Family As-Built, Santa Cruz, Photo 1
  • Single-Family As-Built, Santa Cruz, Photo 2
  • Single-Family As-Built, Santa Cruz, Photo 3
  • Single-Family As-Built, Santa Cruz, Photo 4
  • Single-Family As-Built, Santa Cruz, Photo 5
  • Single-Family As-Built, Santa Cruz, Photo 6
  • Single-Family As-Built, Santa Cruz, Photo 7
  • Single-Family As-Built, Santa Cruz, Photo 8
  • Single-Family As-Built, Santa Cruz, Photo 9
  • Single-Family As-Built, Santa Cruz, Photo 10
  • Single-Family As-Built, Santa Cruz, Photo 11
  • Single-Family As-Built, Santa Cruz, Photo 12
  • Single-Family As-Built, Santa Cruz, Photo 13
  • Single-Family As-Built, Santa Cruz, Photo 15
  • Single-Family As-Built, Santa Cruz, Photo 14
  • Single-Family As-Built, Santa Cruz, Photo 16
  • Single-Family As-Built, Santa Cruz, Photo 17

Single-Family As-Built, Atherton

Project Details

Alterpex was responsible for scanning and collecting data of existing conditions for a single-family house, creating a virtual 360 walkthrough tour (digital twin), and creating a 3D Revit model with a complete as-built set of plans for future renovation.

  • Building Area 1,789 sf

  • 3 Beds, 3 Baths

  • Complete As-Built Set of Plans

  • Full Interior & Exterior Point Cloud

  • 360 Virtual Tour

  • 3D Revit Model & CAD drawings

  • Single-Family As-Built, Atherton, Photo 1
  • Single-Family As-Built, Atherton, Photo 2
  • Single-Family As-Built, Atherton, Photo 3
  • Single-Family As-Built, Atherton, Photo 4
  • Single-Family As-Built, Atherton, Photo 5
  • Single-Family As-Built, Atherton, Photo 6
  • Single-Family As-Built, Atherton, Photo 7
  • Single-Family As-Built, Atherton, Photo 8

Single-Family As-Built, Petaluma

Project Details

Alterpex was responsible for scanning and collecting data of existing conditions for a single-family house, creating a virtual 360 walkthrough tour (digital twin), and creating a 3D Revit model with a complete as-built set of plans for future renovation.

  • Building Area 1,095 sf

  • 2 Beds, 1 Bath

  • Complete As-Built Set of Plans

  • Full Interior & Exterior Point Cloud

  • 360 Virtual Tour

  • 3D Revit Model & CAD drawings

Next
Next

Dormitory